


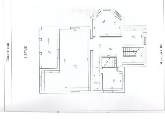
СВОБОДНАЯ ПРОДАЖА!!! ИПОТЕКА НЕ ПОДХОДИТ!!! Продается газифицированный участок 17 соток, который по всему периметру огорожен новым забором из профлиста, высотой два метра. Участок имеет два подъезда с фасадной и тыловой части, что дает возможность проезда на участок даже грузового транспорта и сельхоз техники для обработки участка. Участок выровнен, ухожен. Большая придомовая территория (около двух соток) дает возможность размещения на гостевой стоянке более пяти единиц автотранспорта, имеет круглогодичный и беспрепятственный подъезд как личного, так и транспорта обслуживающих организаций (откачка септика). Участок расположен в ближайшем Подмосковье (17 км от МКАД) в северо-западном направлении и относится к землям населенных пунктов. Участок полностью газифицирован, имеется своя налогонеоблагаемая скважина, электричество 220В, большой септик с одной откачкой в год. На участке расположен жилой дом, большой хозблок с летней верандой, гостевой домик. Дом общей площадью 288 м.кв. установлен на армированном ленточном фундаменте глубиной 1,5 метра. Построен из качественных материалов. Стены из песко-цементных и газосиликатных блоков толщиной до 30 см, Дом имеет цокольный этаж, первый этаж и мансардный этаж. Дом отапливается новым одноконтурным газовым котлом BAXI LUNA 34КвТ, с возможностью подключения бойлера косвенного нагрева воды. Действующее отопление и водоснабжение разведено по всему дому. Водонагрев осуществляется экономичным электрическим бойлером на 100 литров. В дом проведен высокоскоростной оптоволоконный интернет с Wi-Fi раздачей. Цокольный этаж(подвал): Общая площадь 31 м.кв. Высота потолков 2,7 м. Первый этаж: общая площадь 144 м.кв. - Вход Терраса-прихожая общей площадью 25 м.кв. - Центральный, просторный холл общей площадью 20 м.кв. В холе расположена лестница на мансардный этаж, входы-выходы в ванную комнату, каминный зал, бойлерную, кухню и спальню. - Каминный зал 34 кв.м. В комнате установлен экономичный, полноценный камин-печь ручной работы. - Спальня(детская) 10 кв.м. - Кухня 15 кв.м. - Ванная комната с санузлом 10 кв.м. - Кладовая-бойлерная 10 кв.м. - Отапливаемый гараж 20 кв.м. с входом в дом. Мансардный этаж общей площадью 144 кв.м и полезной площадью 102 м. кв. Планировка пока свободная. На этаж выведены отопление и канализация. Капитальный хозблок общей площадью 36 кв.м. (6Х6) построен на ленточном фундаменте из газосиликатных блоков. Хозблок разделен на две равные части, одна из которых является закрытой с двумя окнами для размещения садового инвентаря либо мастерской, вторая открытая для большой летней веранды под крышей, на которой залит капитальный фундамент под печь-барбекю. Хозблок заштукатурен и готов к чистовой отделке. Данное строение прошло строительную экспертизу и официально зарегистрировано в Росреестре. В связи переездом в другой регион косметический ремонт в строениях частично не закончен. Один взрослый собственник. Продается в связи с переездом в другой регион РФ. Агентства не беспокоить!!!! Небольшой Торг!

















































































