


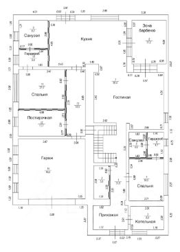
Лот: 9921904. ЭКСКЛЮЗИВ NF GROUP. Дом с мебелью 480 кв.м на участке 60 cот. Кол-во спален: 4. Кол-во с/у: 5. Поселок "Ивакино". Ленинградское шоссе, 11 км от МКАД. Без комиссии для покупателя. Всего 11 км отделяют этот загородный дом от Москвы, но здесь царит атмосфера настоящего загородного уединения. Расположенная в окружении лесного массива у канала им. Москвы, она предлагает идеальный баланс между транспортной доступностью и приватностью. Архитектура — синтез классики и современности. Кирпичные стены, панорамное остекление и благородные фактуры создают образ дома, который вдохновляет с первого взгляда. Интерьеры отличаются лаконичным дизайном в спокойной палитре, где каждая деталь продумана до мелочей — от индивидуально спроектированной мебели до тщательно подобранных текстур. На территории 60 соток создан полноценный ландшафтный дизайн, где искусство встречается с естественной красотой природы. Каждый элемент — от изгиба дорожек до расположения деревьев — подчинен общей философии гармонии, превращая территорию в место силы и восстановления, где природа и архитектура ведут непрерывный диалог. На участке расположены отдельно стоящий дом для персонала с 2 блоками, чайный домик и уличный бассейн. Поселок Ивакино расположен всего в 11 километрах от МКАД по Ленинградскому шоссе, но здесь и по сей день сохранились красивые лесные массивы, прекрасно дополняющие обилие водных ресурсов этого района. Здесь находятся река Клязьма и канал им. Москвы, Клязьминское водохранилище с чистыми пляжами и затонами. Ивакино заслуживает самых лестных отзывов: хорошо продуманная архитектура исключает монотонность, а также полностью воссоздает необходимую атмосферу. Продам большой дом в городском округе Химках Московской области.
























































































































































