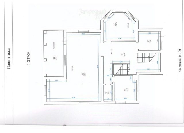
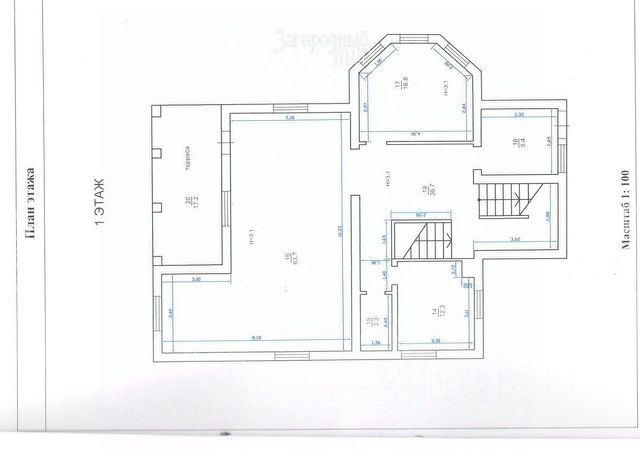
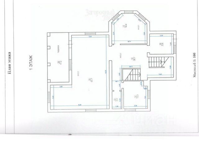
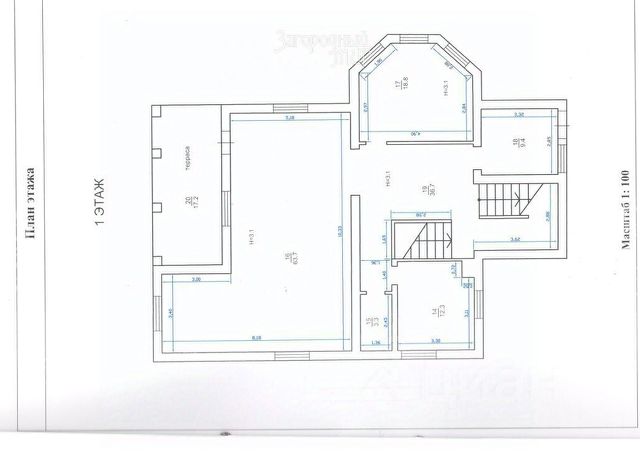
Лот 59834. Пикино. Кирпичный дом 350 м² у воды. Продаётся капитальный дом 2016 года в обжитой деревне — для тех, кто ищет простор, тишину и серьёзный уровень строительства. ❗ Цена обсуждается — готовы к диалогу при быстром выходе на сделку. 💎 Ключевые преимущества (УТП): Дом из керамоблока — держит тепло как "термос" Монолитный фундамент (высокая марка бетона) + цоколь Участок у прудов Потенциал увеличения площади . О доме: Общая площадь: 350 м² (с цоколем и мансардой — до 750 м²) Материал: поризованный керамоблок Кровля: металлочерепица Состояние: под отделку — можно реализовать свой проект без переделок Планировка предусматривает: кухню-столовую гостиную 5 спален 5 санузлов кабинет зимний сад баню бильярдную мансарду свободного назначения Участок: 15 соток (фактически 18) Ровный, огорожен, ворота под ИЖC На берегу живописных прудов Коммуникации: Электричество 20 кВт ТУ на газ получены Канализация — септик 📍 Локация: Удобный подъезд Транспортная доступность Вся инфраструктура — в 1 км (пос. Лунево): школа, детсад, поликлиника, магазины ⚡ Почему это выгодно сейчас: Дом такого уровня строительства дешевле "с нуля" уже не построить. Вы не переплачиваете за чужой ремонт — делаете под себя Участок у воды — ограниченное предложение После подключения газа цена вырастет ❗ Условия: Срочная продажа Документы готовы Рассмотрим обмен на квартиру Готовы обсуждать цену при реальном интересе















































































