Мы используем куки-файлы. Соглашение об использовании
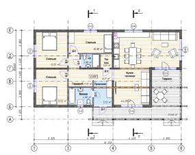
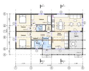
Общая площадь143,6 м²
Участок6,96 сот.
Материал домаКаркасный
Этажей в доме1
Год постройки2025
Новый дом с отделкой в охраняемом поселке у леса всего в 10 минутах от МКАД полностью готов к проживанию! Продажа дома с участком от застройщика. Подходит под программы льготной ипотеки, возможен обмен на вашу недвижимость Дом для круглогодичного проживания, прописка Расположен по адресу: МО, городской округ Химки, квартал дачной застройки Бризе, ул. Радужная улица, д. 272 Почему вам понравится здесь жить: - Дом полностью готов к проживанию — отделка завершена, коммуникации подключены, привозите вещи и наслаждайтесь уютом - Природа рядом: сосновый лес, речка, пруд — прогулки, пикники, свежий воздух каждый день. - Безопасность и спокойствие: закрытый охраняемый поселок с КПП, ваши дети могут безопасно играть на улице, а вы — спокойно гулять вечерами. - Удобная инфраструктура: магазины, обустроенные прогулочные зоны, детские площадки и физкультурно-оздоровительный комплекс - Транспортная доступность: 11 км от МКАД по Пятницкому шоссе и в 7 км от метро Пятницкое шоссе, в экологически чистом районе Подмосковья О доме 143,6 м²: - Сердце дома — просторная кухня-гостиная 44 м²: здесь легко разместится большой диван для киновечеров и стол для шумных праздников. Панорамные окна наполняют пространство светом, а выход на террасу 27 м² стирает грань между уютом интерьера и красотой природы. - Три уютные спальни (13,6, 11, 13,6 м²) - у каждого члена семьи — свое личное пространство для отдыха, работы или игр. - Два санузла, коридор с системой хранения, котельная - все для удобства повседневной жизни Комфорт, который вы оцените: - Магистральный газ в доме - забудьте о переплатах за отопление. - Теплый пол по всему дому с регулировкой температуры по помещениям - Высокие потолки 3,5 м и панорамные окна - ощущение простора, много света и тишины, даже если за окном непогода. - Все коммуникации подключены - электричество, центральные водоснабжение и канализация, вентиляция Участок 6,96 соток здесь уже есть забор, газон, обустроены дорожки и парковочное место. Есть место для создания сада вашей мечты, зоны отдыха или детской площадки. Гарантии и поддержка: - 5 лет гарантии на дом - Пожизненная поддержка по вопросам эксплуатации дома - мы всегда на связи и готовы помочь - Помощь в получении ипотеки - сопровождаем сделку на всех этапах Варианты покупки: - Документы готовы, продажа от застройщика - без комиссий и переплат - Льготная ипотека: семейная, IT - ставка 6% - Наличные денежные средства - Возможность обмена на вашу недвижимость - Ипотека, материнский капитал работаем со всеми банками Звоните или пишите — ответим быстро! Приглашаем на просмотр в удобное время Поможем подобрать лучший вариант и получить одобрение ипотеки Отзывы о нашей компании смотрите на сайте тд-дома Добавьте объявление в избранное, чтобы не потерять свой будущий дом. Специальные условия для Риэлторов - с нами комфортно работать
Позвоните автору
Вам ответят на все вопросы

О доме

Площадь

143,6 м²

Материал дома

Каркасный

Состояние дома

Можно жить

Количество этажей

1

Количество спален

3

Год постройки

2025

Об участке

Площадь

6,96 сот.

Статус участка

Индивидуальное жилищное строительство

Коммуникации и удобства

Санузел

2 в доме

Канализация

Центральная

Водоснабжение

Центральное

Отопление

Автономное газовое

Электричество

Есть

Газ

Магистральный в доме или на участке

Дополнительно

Терраса

Спросите умного помощника
Получите экспертное мнение о жилье

О КП «Бризе»

Класс

Элитный

Всего объектов

22

Объектов в продаже

22

Расположение

Подпишитесь на объявления в этой локации
Мы сообщим, как только поблизости появится что‑нибудь новенькое
Ипотечный калькулятор
  • Базовая
  • Семейная
  • ИТ-ипотека
  • 20%
  • 30%
  • 40%
  • 50%
лет
  • 10 лет
  • 20 лет
  • 30 лет
Загружаем предложения от застройщика и банков
Хотите продать недвижимость?Разместите объявление на ЦианРазместить
23 000 000 ₽
Эксперт от ЦианаПомощь с поиском и гарантия безопасной сделки
Цена за метр
160 167 ₽/м²
Условия сделки
свободная продажа
Ипотека
возможна
Агентство недвижимости
Суперагент