


Только на Циан
29 700 000 ₽
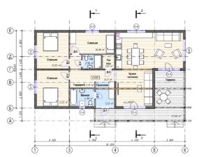
Дом бизнес- класса площадью 148 м² с центральными коммуникациями в 11 км от МКАД — поселок Бризе
Площадь участка - 7.8 соток
4 главных преимущества:
- близкое расстояние до Москвы
- все коммуникации центральные
- высокое качество постройки дома
- вся инфраструктура Митино в 15 минутах от дома
Современные технологии строительства:
Стены из керамического кирпича + утеплитель 100 мм + облицовочный кирпич. Мягкая кровля. Установлены энергосберегающие окна, металлическая дверь с терморазрывом.
Коттеджный поселок находится в 1 км от Пятницкого шоссе, а также близко к Москве- до МКАД 11 км, до м. Пятницкое шоссе 8 км. Рядом есть автобусная остановка, благодаря которой можно за 35-40 минут проехать к метро.
В Бризе отличная инфраструктура, благодаря которой жители ощущают высокий уровень жизни. Здесь есть доступ ко всем удобствам городской жизни.
В коттеджном поселке установлен пост охраны, въезд осуществляется через шлагбаум.
Все коммуникации центральные: водоснабжение, канализация. Проведены магистральный газ, электричество, цифровое телевидение, опто-волоконный интернет. Большинство дорог заасфальтировано.
Бризе это один из лучших коттеджных поселков по направлению Пятницкого шоссе, имеющий полноценную инфраструктуру, включающий все центральные коммуникации и расположенный близко к Митино и к Москве.
Документы:
- 1 взрослый собственник
- основание договор купли- продажи
Звоните, чтобы узнать подробности и записаться на просмотр.




























































































