Мы используем куки-файлы. Соглашение об использовании
Общая площадь195 м²
Участок6 сот.
Материал домаКирпичный
Этажей в доме2
Год постройки2025
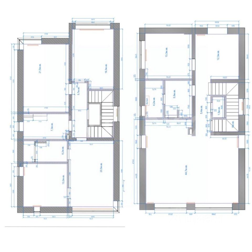
Продаётся просторный и тёплый дом площадью 190 м² на ухоженном участке в тихом закрытом посёлке Новогорск Клаб. Дом полностью готов к проживанию: выполнен дизайнерский ремонт, вся необходимая мебель и техника уже на месте. На данный момент в доме ведутся ремонтные работы, которые завершатся к июню. Планировка и особенности:Два этажа, продуманная эргономика пространства. Три спальни, гардеробная, кабинет, кухня-гостиная, три санузла. Тёплая закрытая терраса для круглогодичного отдыха. На участке 6 соток — уютная мангальная зона и очаг, участок ровный, в собственности, границы размежеваны. Все коммуникации центральные: газ, вода, канализация, электричество. Закрытый посёлок: шлагбаум, видеонаблюдение, тихие улицы. Хорошая транспортная доступность : поселок находится в 10 минутах от МКАД, в пяти минутах от Мега Химки. Дом сочетает комфорт, стиль и функциональность. Идеально подойдёт для семьи, ценящей уют и качество жизни. Дом строился для себя, не под продажу — отсюда качественные материалы и продуманная планировка. Инфраструктура КП: Ресторан, супермаркет, кафе, химчистка, пергола с качелями, автомобильная парковка, зона озеленения. Площадка для малышей, площадка для детей старшего возраста, зона ожидания родителей. Теннис, мини-футбол, баскетбол, пляжный волейбол, воркаут, велопарковка, зона озеленения. На территории оборудованы зоны отдыха, прогулочные зоны, велосипедные дорожки, выполнено качественное озеленение. Один взрослый собственник, документы готовы к сделке. Оперативный показ по предварительной записи. С21 Premium Property - участник ассоциации AREA Арт. 134782133
Позвоните автору
Вам ответят на все вопросы

О доме

Площадь

195 м²

Материал дома

Кирпичный

Количество этажей

2

Количество спален

4

Год постройки

2025

Об участке

Площадь

6 сот.

Статус участка

Индивидуальное жилищное строительство

Коммуникации и удобства

Санузел

3 в доме

Канализация

Есть

Водоснабжение

Центральное

Отопление

Центральное газовое

Электричество

Есть

Газ

Есть

Спросите умного помощника
Получите экспертное мнение о жилье

О КП «Новогорск Клаб»

Класс

Элитный

Всего объектов

324

Объектов в продаже

23

Расположение

Подпишитесь на объявления в этой локации
Мы сообщим, как только поблизости появится что‑нибудь новенькое
Ипотечный калькулятор
  • Базовая
  • Семейная
  • ИТ-ипотека
  • 20%
  • 30%
  • 40%
  • 50%
лет
  • 10 лет
  • 20 лет
  • 30 лет
Загружаем предложения от застройщика и банков
5,0・1
Документы проверены
Хотите продать недвижимость?Разместите объявление на ЦианРазместить
100 000 000 ₽
Эксперт от ЦианаПомощь с поиском и сделкой
Цена за метр
512 821 ₽/м²
Ипотека
возможна
Агентство недвижимости
Документы проверены
На Циан
8 лет
Объектов в работе
168
5,0・1