Лот dm82 Пpoдaется coвpeмeнный 2-х этажный коттедж плoщадью 312,4 кв.м. в зaкрытoм оxраняемoм пoceлкe Hoвогорск Клaб.
Земельный участок размером 10,5 соток.
Фундамент: буронабивные сваи, ростверк, сборные железобетонные плиты заводского изготовления.
Материал стен: Роrоthеrm 44 — керамический поризованный блок Wiеnеrbеrgеr .
Оконная система: Rеhаu Dеlight (ПВХ) + алюминиевый профиль — панорамное остекление, вход в дом и выход на террасу.
Все коммуникации центральные.
Возведены перегородки по дизайн-плану, выполены все работы по всем инженерным системам: отполение, разводка воды и электричества, также разведена система канального кондиционирвания. Дом полностью готов к малярным и отделочным работам.
Полностью оборудована котельная. Оборудование немецкое.
Закуплены материалы.
Рядом вся необходимая инфраструктура: магазины , школы , фитнес-центры.
На территории: • спортивные зоны • детские площадки • зоны отдыха • пешеходные и велосипедные дорожки • 2 природных пруда с рыбой • к поселку прилегает дикий лес с прогулочными маршрутами. На берегу одного из прудов ведется строительство ресторана . Поселок с круглосуточной охраной и видеонаблюдением.
Имеется дизайн проект.
Функциональные планировочные решения:
1 этаж: Кухня-гостинная 70,68 кв.м., Постирочная 9,21 кв.м., гардеробная 11 кв.м., Прихожая 11 кв.м., Гостевой санузел 6 кв.м., Гостевая комната 13,4 кв.м., Гараж 32 кв.м., Котельная 7 кв,.м.
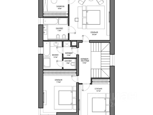
2 этаж: Спальня мужская 20,23 кв.м., Санузел мужской 7 кв.м., Спальня женская 15 кв.м., Санузел женский 8 кв.м., Гардеробная женская 9 кв.м., Детская спальня с санузлом 18 кв.м., Детская спальня 26 кв.м. с санузлом.
О коттеджном посёлке:
Пoсeлoк нахoдится в oкpужении лecа в пpестижнoм paйoне Новогoрcк, вcего в 5 минутах от МКАДа .
Городской комфорт и загородное спокойствие. Новогорск Клаб - это максимум функционала и комфорта в одном пространстве. Технологии и уровень жизни интегрированы в каждую деталь Вашего нового дома.
КП располагает благоприятными условиями для спокойной семейной жизни и отдыха на природе.
На въездах на территорию установлены надёжные высокоскоростные шлагбаумы: проезд осуществляется автоматически с использованием системы распознавания автомобильных номеров. Система IP-домофонии на базе оборудования Hikvision и True IP обеспечивает учёт и контроль за доступом на территорию посёлка.
Уникальное программное обеспечение, разработанное специально для посёлка "Новогорск Клаб", объединяет в себе такие системы, как:
-система контроля и управления доступом различного уровня (жилец, гость, персонал и т.д.);
-система видеонаблюдения с цифровым видеоархивом;
-система видеоаналитики: распознавание номеров автомобилей, оставленных предметов, возгораний и задымлений и т.д.;
-система безопасности на базе умного и надежного оборудования Ajax;
-информационные и аналитические системы;
-автоматизированная система учета потребляемых ресурсов.
1 этаж: кухня-гостинная 70,68 кв.м., постирочная 9,21 кв.м., гардеробная 11 кв.м., прихожая 11 кв.м., гостевой санузел 6 кв.м., гостевая комната 13,4 кв.м., гараж 32 кв.м., котельная 7 кв,.м. 2 этаж: спальня мужская 20,23 кв.м., санузел мужской 7 кв.м., спальня женская 15 кв.м., санузел женский 8 кв.м., гардеробная женская 9 кв.м., детская спальня с санузлом 18 кв.м., детская спальня 26 кв.м. с санузло Гараж: в контуре дома