Здравствуйте! Дом находится по Ленинградскому шоссе в 14 км от МКАД в д. Пикино городской округ Химки. Рядом проходит новая скоростная Ленинградка. 1) Высота первого этажа -3 метра 2) Второй этаж - сруб из оцилиндрованного бревна из Архангельска. 3) Крыша с четырьмя мансардными окнами. Электричество 20 кВт. (уже подключено) Газ по границе участка. 4) Площадь участка 8 соток. ИЖС. Проект дома есть 6) Дом и участок оформлены 7) Собраны документы и подана заявка на льготную газификацию Рядом лес и озеро Продаю в связи со строительством гостиницы в Подмосковье Реальному покупателю Торг Возможен обмен на квартиру в Москве или смешанный платёж по стоимости дома.
Купить загородную недвижимость в деревне Пикино Московской области
Функциональный дом для постоянного проживания! Продаю современный 1-этажный дом 160.1 кв.м. на ровном участке 5 соток. Дом построен в 2021 году. Полностью обустроен, меблирован и укомплектован бытовой техникой. Все настоящее, натуральное и выдержано в едином стиле с высокими потолками 3.6 метра! Дом сочетает в себе удобную и функциональную планировку: 1)уютная гостиная 29.1кв 2)просторная кухня-столовая 18.6кв 3)4 спальные комнаты В одной из спален предусмотрена гардеробная, в доме несколько санузлов. Бойлерная располагается в доме, вход с обратной стороны дома. На участке к расположен навес на 2 а/м. На участке дополнительно построена кухня 45кв метров, где отлично можно проводить время с семьей жаря шашлыки. Статус земли: земли населенных пунктов, для индивидуального жилищного строительства. Полное инженерное и техническое обеспечение: электричество 15кВт, магистральный газ по границе, скважина, септик. Оборудована система отопления электрокотлом, водяные теплые полы,, подведен оптоволоконный интернет. Идеальное место для загородной жизни с комфортной удаленностью от Москвы Документы: 1 собственник, полная стоимость в ДКП. Помогу с одобрением ипотеки! Все документы на объект оформлены в соответствии с требованиями действующего законодательства.
Степень готовности дома 63% , площадь дома 543,8 м, земельный участок 6,2 сот. под домом большое подвальное помещение площадью 350 кв. м, подведено электричество 380. Газ на участке, вода скважина, септик.Монолит.Участок огорожен по периметру. Срочно, торг.
Лот 59834. Пикино. Дом 2016 город возведения в обжитой деревне. Дом построен из поризованного керамоблока ( работает как большой теплоаккумулятор), площадью 350 м2 под отделку. У дома кровля- металлочерепица, фундамент монолит( использование бетона марки М1000- бункер) с цокольным этажом. Предусмотрены: кухня-столовая, гостиная, 5 спален, 5 с/у, зимний сад, кабинет, баня, бильярдная. Мансарда свободного назначения. Участок 15 соток ( по факту 18 соток) на берегу красивых прудов: выровнен, огорожен забором из металлопрофиля, оборудован воротами. ИЖС. Коммуникации : электричество 20 квт, получено ТУ на подключение к газу. канализация-септик. Отличная транспортная доступность на общественном транспорте и автомашине, полная инфраструктура: школа, сад, поликлиника, сетевые магазины и пр. Есть все! Рассмотрим обмен на квартиру.
Продается участок 15 соток с недостроенной гостиницей в 15 мин от Шереметьево. ИЖС. Уникальное предложение для инвестора! Продается земельный участок 15 соток с недостроенным кирпичным обьектом (готов первый этаж). Категория - земли населенных пунктов (ИЖС), с возможностью перевода под коммерцию. Выгоды для вас: * Готовый задел для бизнеса: На участке возведен первый этаж из кирпича под будущую гостиницу, мотель или иной объект. Имеются все материалы для возведения второго этажа-значительная экономия на стройматериалах и времени. * Элитная локация: Всего 15 минут езды до терминалов аэропорта Шереметьево. Участок на Лонге с отличной транспортной доступностью. * Высокий потенциал:Идеально для строительства гостиницы, отеля, хостела или многофункционального комплекса. * Гибкость:Помощь в переводе земли в категорию для коммерческой застройки Ваш бизнес - отель у аэропорта ждёт Вас !
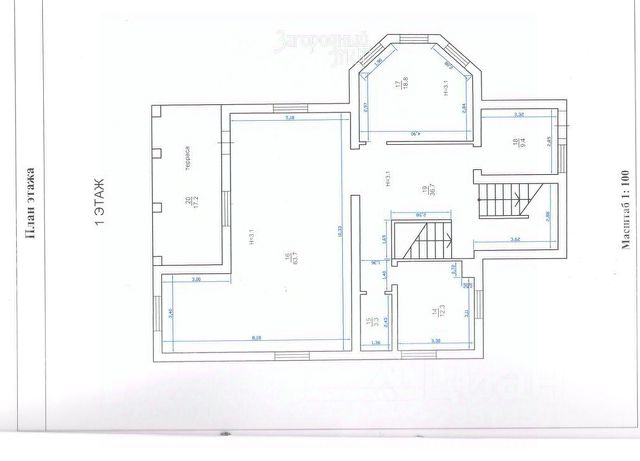
Дом 84 кв. м. на участке 3 сотки, два этажа, требуется ремонт. Вода в доме,септик.Газ на участке.
Дом требует небольшого ремонта
Продается дом с большим участком в Московской области г.о. Химки, д. Пикино. 16 км от МКАД Дом 90 кв.м. Первый этаж - бревно, снаружи обшит сайдингом. Второй этаж - мансарда без отделки, терраса. Фундамент - бетонные блоки. Под всем домом подвал. Коммуникации: электричество 15 кВт, вода из колодца в доме, отопление твердотопливный котел(в подвале), септик 4 кольца. Газ по границе участка, есть возможность подключить по гос.программе Участок большой, ровный, 20 соток, есть место для постройки большого дома. На участке много плодовых деревьев и кустов. Так же есть бытовка, хоз блок, вольер для собаки. Хорошие соседи, которые живут постоянно. Вся инфраструктура в пешей доступности. Звоните, отвечу на все интересующие вопросы. Я собственник РЕАЛЬНОМУ ПОКУПАТЕЛЮ ТОРГ)
Продается 2 этажный кирпичный дом, 3 этаж холодный, используется под хранение. В доме камины на каждом этаже с отдельной шахтой, мраморная лестница на 2 этаж. Мраморные подоконники. Теплые полы на первом и втором этаже ( где плитка). Паркет неподогреваемый. 2 застеклённые лоджии и 2 без остекления на первом и втором этажах. 2 совмещённых санузла. Витражное стекло - 2 свет. Также, на участке беседка, 2 этажный гостевой дом с парилкой, подогреваемым бассейном, душевой. 1 санузел. Гараж на 1 машину+ полки для хранения 20 кубов. Погреб с полками 20 квадратов по полу. высота около 2,5 м. Раздельные кательные с газовыми котлами,бойлеры. в 2024 году сделали скважину 100 м с водоочисткой. документы имеются, гарантия 20 лет. 2024 г установлены снегозадержатели, водосточная система на все крыши.
5 спален Кухня-гостинная 2 санузла огромная терраса ( зимний сад) мансарда с возможностью превратить в 3 этаж 2 балкона гараж участок ровный прямоугольный. по периметру высажены плодовых деревья. асфальтированная улица, освещение, соседи - коттеджные дома круглогодичного проживания. в 5 минутах ходьбы, Дикси, Пятёрочка, Школа, детский сад, поликлиника. реальному покупателю очень хорошая скидка!
гостевой дом. Рабочее состояние. проходит по ипотеке, база, персонал в комплекте. Высокая загрузка.
2-х этажный дом; 3 спальни; 2 санузла; кухня; гостинная
Вашему вниманию предлагается участок на 18 соток и два дома, основной площадью 250 м² просторный двухэтажный дом и гостевой дом площадью 130 м². Кирпичные с качественной внутренней отделкой с продуманной планировкой в живописном месте ( городской округ Химки) 15 км от МКАД Идеальное сочетание надежности, комфорта и автономности- эти современные дома построены для тех, кто ценит качество и уют. Ключевые особенности дома 250 м² 1-ый этаж: Просторный холл , вместительная кухня- гостиная , гардеробная, большой санузел с душевой кабиной, также имеется кладовка - комфортное пространство для хранения вещей. Тёплый пол- система отопления, обеспечивающая нагрев воздуха в помещении снизу, где отопительным прибором выступает тёплый пол (настил) 2-ой этаж: Три просторные комнаты и санузел с ванной -тёплый пол. Комплексная система очистки воды - это компактная система, способная очистить воду в домах до состояния питьевой . Кровля: металлочерепица- долговечность и стильный внешний вид. Установлена дренажная система по периметру дома. Территория огорожена забором с откатными воротами - одно из главных преимуществ откатных ворот — компактность. Механизм открывается параллельно забору, тем самым сохраняя свободное пространство внутри территории участка. Навес из металлоконструкций для четырёх автомобилей. Баня для отдыха и времяпровождения ( с душевой, парной, туалетом и зоной отдыха) Сарай , помещение для хранения садового инвентаря . Беседка с мангалом - они делают отдых на природе более комфортным, отвлекают от привычного времяпровождения в городских условиях. Плодовый сад на участке: Яблони разных сортов , сливы , вишня , крыжовник , смородина , клубника. Территория усажена газоном : Красиво декорированный участок и ухоженный газон дарят эстетическое наслаждение. В 5 минутах ходьбы супермаркеты Дикси, Пятёрочка, а так же школа, детский сад, поликлиника. В 10 минутах благоустроенное озеро Круглое для летнего отдыха. Остановка общественного транспорта. До центра Москвы по М11 - 35 минут! Удобная транспортная развязка, в 10 минутах езды ст. Сходня Район для круглогодичного проживания, нет дополнительных платежей, отличается развитой инфраструктурой и отличной транспортной доступностью. Вблизи храм 16 века и База отдыха озеро Круглое с оборудованной зоной отдыха, пляжем. Близость к Москве и основным транспортным артериям позволяет быстро добраться до столицы, сохраняя при этом все преимущества проживания в тихом, зеленом массиве. Окрестности богаты лесными зонами, что гарантирует чистый воздух и приятные возможности для прогулок и активного отдыха на природе. Возможность пользоваться социальной инфраструктурой Зеленограда. Московская медицина, гимназии. Рядом Аутлет "Черная грязь", Лемана про, Ашан, ТЦ Зеленопарк, сетевые магазины. Футбольное поле, бесплатные спортивные секции для детей и взрослых. Библиотека , Дом культуры. Общественный транспорт до метро Ховрино, Речной вокзал. Один взрослый собственник. Быстрый выход на сделку.
Квартира без ремонта, после арендаторов. Балкона в квартире нет. Цена 7,2 млн. Торга нет и не будет. У квартиры один взрослый собственник. Приобреталась в 2019 году по договору долевого участия без использования ипотеки и мат капитала. Свободная продажа. Никто не прописан Квартира в обычном жилом состоянии. Совмещенный санузел. Большая кухня и комната. Балкона в квартире нет. Можем оставить покупателю мебель и технику (не новые, после аренды)
Код объекта: 1890522. Продается 1 комнатная квартира рядом парком — идеальное сочетание природной красоты и городского комфорта! Не упустите возможность стать владельцем комфортной квартиры! О Доме и квартире: Площадь 44.7/18.2/9.2кв м, этаж 3/10, кирпичный дом. В подъездах установлено видеонаблюдение, что гарантирует спокойствие жильцов. Наземная парковка возле дома. Мебель и кухонный гарнитур - по договоренности. Ремонт в квартире производился в 2024 году, на кухне современная техника Haier, встроенная посудомойка. Уютная, светлая квартира с хорошим ремонтом. Готова к проживанию! Транспортная доступность: Удобная транспортная доступность, в 20 минутах пешком станция метро Лухмановская. В шаговой доступности расположены остановки общественного транспорта, по маршрутам которых можно добраться до станции метро, МЦД. Отличная транспортная развязка, позволяющая быстро добраться в любую точку города. Время в пути составляет около 15-25 минут в зависимости от загруженности дорог. Инфраструктура: Комфортное место для жизни с развитой социальной инфраструктурой.: поликлиника, детские сады, школы , престижная гимназия, учебные центры. супермаркеты, кафе, ПВЗ. Сфера услуг - фитнес центры, досуговый центр, парикмахерские, спа-салоны. Рядом расположен Наташинский парк и живописный водоем! Идеальное место для для пеших прогулок, для семейного досуга и активного отдыха. Документы: Свободная продажа, без обременений, 2 собственника. Готовы к просмотру? Звоните — договоримся о встрече! Покупателю выдаётся правовой сертификат, гарантирующий юридическую чистоту объекта. Возможна ипотека с особыми условиями для клиентов МИЭЛЬ от банков-партнеров, работаем с любыми источниками финансирования (материнский капитал, военный сертификат и т.д. Бонусы по партнерским программам МИЭЛЬ на товары и услуги от известных брендов.
Код объекта: 1515497. ЗА ОБЪЕКТ ВНЕСЕН АВАНС! Ищете идеальный дом для вашей семьи? У нас есть уникальное предложение, которое не оставит вас равнодушными! Продается уютный двухэтажный дом в городе Чехов. О ДОМЕ: - на 1 этаже (прихожая, гостевая спальня, кухня-гостиная, с/у); на 2 этаже (3 спальни и кладовое помещение) - Дом полностью меблирован и оборудован необходимой бытовой техникой. - Коммуникации: газ, электричество, водоснабжение, септик ТРАНСПОРТНАЯ ДОСТУПНОСТЬ: - В шаговой доступности вся инфраструктура: ж/д и авто вокзалы, магазины, больница, детский сад, школа, спортивный комплекс "Олимпийский". - Круглогодичный подъезд к дому (Асфальт) в зимний период - дорогу чистят и убирают ДОКУМЕНТЫ: - 1 взрослый собственник. - Обременений нет. - Готовы оперативно выйти на сделку. - Назначение земли ИЖС (возможна постоянная прописка). УСЛУГИ: - Помощь в одобрении и получении ипотечного кредита, специальные условия и преференции от ведущих банков-партнеров. - Безопасность сделки и качество предоставляемых услуг обеспечивается стандартами Гильдии Риэлторов Москвы. - Поможем построить дом по ипотечной ставке от 5,9%, в том числе без первоначального взноса Если Вам понравился дом, но для покупки Вам необходимо быстро и выгодно продать Вашу недвижимость, мы с удовольствием Вам в этом поможем!
Номер в базе: 10613793. Продаётся отличная 2-х КОМНАТНАЯ ЕВРО-КВАРТИРА в ЖК Комфорт-класса "Лесные озёра" общей площадью 52, 3 кв. м. в городском округе Люберцы, г. Дзержинский. Дом находится на первой линии от Леса и Большого Дзержинского карьера! О КВАРТИРЕ: - 2-х комнатная евро-квартира - 2 этаж - отличная, удобная планировка - окна на одну сторону, во двор, в сторону леса - просторная кухня-гостиная (около 17 кв. м. ) - изолированная спальня (20 кв. м. ), планировка комнаты позволяет сделать гардеробную внутри! - потолки 2, 75 м. - огромная застеклённая лоджия - просторная прихожая - совмещенный санузел О ДОМЕ: - презентабельная входная группа, консьерж и видеонаблюдение - дом монолитный, 17 этажей - отличная теплоизоляция, звукоизоляция - наземные и подземная парковки - благоустроенный двор, на просторной придомовой территории разбит сквер, расположено футбольное поле, есть гостевая парковка, построен детский городок ТРАНСПОРТНАЯ ДОСТУПНОСТЬ: - 5 км от МКАД, удобный выезд на МКАД - метро Котельники, Люблино и станция Люберцы-1 за 15-25 минут на общественном транспорте - рядом с домом остановка общественного транспорта, с которой можно доехать как до метро Домодедовская, так и до метро Выхино и Котельники ОКРУЖЕНИЕ: - вся необходимая инфраструктура для комфортной жизни рядом: детские сады, школы, поликлиника, торговые центры, супермаркеты, рестораны, кофейни, фитнес-клуб, стадион, экстрим-парк, отделения банков, детский парк, скверы и пр. - поблизости Николо-Угрешский монастырь - для прогулок и активного отдыха в шаговой доступности расположены Томилинский лесопарк, а также Большой Дзержинский и Люберецкий карьеры с оборудованными зонами отдыха и пляжами - недалеко протекает Москва-река, расположено несколько озёр и Монастырский пруд - поклонников экстремальных развлечений ждёт располагающийся поблизости экстрим-парк "Фристайл" О ДОКУМЕНТАХ: - 2 взрослых собственника - полная стоимость в ДКП - без обременений и задолженностей Покупая квартиру через агентство недвижимости "Этажи", Вы получаете: - юридически чистую квартиру без рисков, консультирование, безопасный расчет - помощь в одобрении и оформлении ипотеки во всех ведущих банках с преференциями от 0, 3% - экономия ежегодных страховых взносов на 20-30% - сертификат финансовой безопасности _________________________________________________ _______ Звоните! Отвечу на все Ваши вопросы! Если Вы планируете продажу своей квартиры, обращайтесь я готова помочь! Код пользователя: 142031
Адрес: обл. Московская, г. Подольск, ул. Дачная, дом 1/8 (на карте обозначен верно). Фотографии соответствуют реальному состоянию. Сделан капитальный ремонт "от и до" (заменена вся электрика, все сантехнические трубы, входная дверь, полы, cтены, окна, фасад и крыша, тротуарная плитка).Установлена приточно-вытяжная система с мульти-сплит кондиционированием. Реставрированный, исторический облик дома сталинской архитектуры подчеркнут фасадной подсветкой. Из типового дома с маленькой кухней сделан великолепный, современный дом с большой светлой кухней-столовой, просторной гостиной, отдельной спальней c приватным санузлом. В главной спальне выделен приватный санузел, приватный гардероб. Кровать с подъёмным механизмом и дополнительными местами хранения. Дополнительная комната может стать как отличной детской, второй спальней, так и кабинетом - на ваше усмотрение. Просторная кухня-столовая оборудована всей необходимой техникой (встроенный холодильник, посудомойка, варочная панель и встроенный духовой шкаф, встроенная микроволновая печь и вытяжка). Вся мебель и техника - новые и остаются в подарок покупателю. Просторный хоз.блок - выделена зона для стиральной и сушильной машины, зоны для хранения, удобно расположены розетки. Шикарный гостевой санузел в оттенке "burgundy" в сочетании с широкоформатным керамогранитом и черной матовой фурнитурой - выглядит дорого и современно. Участок ровной прямоугольной формы, 4 cотки, огорожен со всех сторон забором. Новая брусчатка, новые въездные автоматические ворота, калитка с домофоном, сделана планировка под посадки растений, на территории установлено видеонаблюдение с возможностью оnline просмотра в вашем приложении на смартфоне, 3 парковочных места. Гараж 100 м2 c удобным заездом и автоматической дверью может быть использован, как крытая автостоянка, так и для вашего бизнеса. Рядом расположены логистические центры маркет-плейсов Ozon и Widberries. Адекватные, интеллигентные соседи. В 10 минутах пешком МЦД Силикатная - всегда можно максимально быстро добраться в любую точку Москвы и Подольска. Дом полностью готов к проживанию. Быстрый выход на сделку.
Скидка на ипотечную ставку до 10%. Данная сделка застрахована САО-Ресо Гарантия. Вашему вниманию предлагается просторная, светлая квартира в тихом спокойном ЖК "Кореневский форт" Выполнен ремонт с использованием качественных материалов. Мебель остаётся новому покупателю! Интеллигентные доброжелательные соседи. Красивый лес, прекрасное место для отдыха, свежий воздух. Прекрасный вариант для тех, кто мечтает жить вдали от городской суеты, но недалеко от Москвы. Инфраструктура: школа, детский сад с бассейном, сетевые магазины Транспортная доступность: остановка общественного транспорта находится рядом с домом, до метро Некрасовка и станция Люберцы 15 мин Покупателю: -Бесплатное сопровождение сделки; - Квалифицированная помощь в получении ипотеки и ведущих банках, срок одобрения от 1 до 3 дней; - Специальные скидки 0,3 - 5%; - Возможность подачи заявок одновременно в несколько банков, высокая степень одобрения; - Работаем с сертификатами; - Индивидуальный подбор ипотеки с наименьшей ставкой, с учетом госпрограмм, акций;
Продаётся шикарная квартира в ЖК "Новый Раменский",современный и молодой район,в квартире очень удобная планировка,большые изолированные комнаты,из уютной кухни выход на застеклённую лоджию,в квартире выполнен хороший ремонт,с использованием качественных материалов,мебель и бытовая техника от ведущих производителей,включая посуда моечную машину,широко развитая инфраструктура,много спорткомплексов,фитнес клубов, салоны красоты,клиники,аптеки,магазины разной потребности, детский сад,школа,лесопарки,одним словом всё для перспективной и счастливой жизни,свободная продажа,один взрослый собственник,полная стоимость в договоре,звоните!
Сдается прекрасная студия с удобным месторасположением. В студии имеется все самое необходимое.
Продается просторная евродвушка 45кв цокольный этаж : кухня- гостиная, спальня, есть ещё пристой +20кв( в нем теплый пол). Также в подъезде есть личная кладовая, где можно хранить вещи.Рядом с домом есть участок, можно что-то посадить)). В доме есть газовый котел, нагревает воду и батареи( поэтому не ждём отопительного сезона и отключения горячей воды, всё работает, когда комфортно). Рядом школы, магазины. Остановки общественного транспорта до метро Некрасовки и МЦД. Рядом парк Ольгино. Всё в пешей доступности.
Вашему вниманию предлагается светлая и уютная 2-комнатная квартира в центре г. Раменское, на улице Бронницкая д.13 Общая площадь квартиры составляет 52 кв. м+лоджия, комнаты изолированные 17/14 кв.м, кухня — 9 кв. м, с/у раздельный, просторная прихожая 10 кв.м, большая лоджия 6 кв.м. Квартира расположена на 13 этаже 14-этажного панельного дома. До станции МЦД "Раменское" и Ипподром всего 7 минут пешком, что делает поездки в Москву быстрыми и удобными. Квартира с качественным ремонтом, очень теплая, солнечная, чистая, уютная, что позволяет сразу же заселяться и жить с комфортом. В просторной кухне можно с удовольствием готовить и принимать гостей. Санузел раздельный, что удобно для любой семьи. Есть большая отделанная и застекленная лоджия, где можно устроить зону отдыха или хранить сезонные вещи. Просторная прихожая со строенными шкафами. Дом в хорошем состоянии, оборудован пандусом, что удобно для семей с детьми и людей с ограниченными возможностями. В подъезде есть как пассажирский, так и грузовой лифт, поэтому можно без труда поднимать тяжелые вещи. Для удобства жильцов предусмотрена наземная парковка, поэтому вы всегда найдете место для своего автомобиля. Инфраструктура района развита: в шаговой доступности находятся 3 школы и детские сады, музыкальная школа, развивашки, поэтому вашим детям не придется далеко ходить. Различные сетевые магазины позволят вам быстро и удобно совершать покупки. Рядом с домом современные детские площадки. Все необходимое для комфортной жизни — рядом! Квартира полностью готова к продаже. Возможна покупка в ипотеку. Все документы проверены и готовы к сделке, обременений нет, 2 взрослых собственника более 5ти лет. Звоните и записывайтесь на просмотр. Мы будем рады показать вам эту замечательную квартиру в удобное для вас время. Не упустите шанс стать владельцем уютного жилья в одном из лучших районов!
Арт. 128010664 Впервые сдается 1-комнатная (по факту евро-2 комнатная) квартира в доме 2019 года постройки. Площадь 38 кв м Кухня, совмещенная с комнатой 16 кв м: диван раскладной, комод, тумба, холодильник, обеденная зона, кухонный гарнитур, плита, вытяжка, чайник Уютная комната 12 кв м с выходом на лоджию: письменный стол, шкаф, диван раскладной. В ванной комнате оборудована душевая кабина, имеется стиральная машина и зеркало. При желании можно организовать зону хранения над стиральной машиной. В прихожей Шкаф, вешалка, пуф, обувница. Квартира на 18м этаже, из окна открывается приятный вид на лес. Окна выходят во двор , на детскую площадку. На первом этаже дома расположены продуктовые магазины , аптека, цветочный магазин, пункты доставки. Через дорогу рынок и храм Пантелеймона. Автобусная остановка - 3 минуты ходьбы. До МЦД-3 15 минут пешком или 5 минут на автобусе. До метро Котельники 30 минут на автобусе или 20 минут на авто. Квартира сдаются впервые. На длительный срок. Без животных. Оплата в первый месяц: арендная плата + залог (можно разделить на два месяца) + комиссия 50%. Со второго месяца арендная плата + счётчики. Просмотры по предварительной договорённости. Есть видео-обзор.
Продается уютная однокомнатная квартира в кирпичном доме. Тихий двор, всегда есть парковочные места. В шаговой доступности есть школы, детские сады, бассейн, магазины и вся необходимая инфраструктура. Рядом мцд "Подольск". 1 собственник, свободная продажа, без обременений, быстрый выход на сделку. Звоните, пишите для записи на просмотр.









































































