Кирпичный дом в закрытом охраняемом коттеджном поселке в Новогорске, расположенный в 7 км от МКАД по Куркинскому шоссе.
Дом в стиле БарнХаус площадью 240 кв.м удовлетворит вкусы самых взыскательных покупателей, так как является плодом многолетней деятельности строительной компании-подрядчика, в нем учтены все нюансы и устранены все недостатки, выявленные в процессе эксплуатации ранее построенных проектов этого типа. Дом возводится на монолитной фундаментной плите 300мм, стены первого и второго этажа из крупноформатного керамического блока поротерм 38 термо, кровля фальцевая стальная, алюминевые окна и двери.
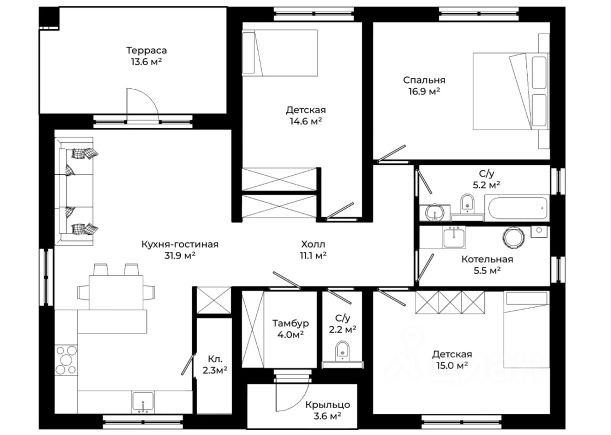
Помимо конструктива дома, продумано до мелочей и планировочное решение, несмотря на не очень большую площадь в доме уместили несколько санузлов, несколько гардеробных, постирочную и 4 изолированные спальни, просторные террасы и балконы.
Компания-застройщик имеет непререкаемую репутацию на рынке и многолетний опыт строительства. Гарантия на дом 50 лет.
Участок под строительство дома правильной формы 6,36 сот., все соседи построились, дом подключен к городской канализации и водопроводу, установлен электрощит с 15 кВт Есть место для парковки перед домом, возможно строительство навеса.
Также на участке построена баня-винокурня, оборудованная погребом,
Планировка дома:
Первый этаж: холл, котельная, гардеробная, гостевая спальня/кабинет, санузел первого этажа, постирочная, просторная кухня - столовая-гостиная с выходом на террасу.
Второй этаж: холл второго этажа, две изолированные спальни с выходом на балкон, санузел и гардеробная, мастер-спальня с собственной гардеробной и санузлом и выходом на балкон.
Новогорск - микрорайон подмосковного города
Химки, расположенный на северо-западе
Подмосковья, всего в 5 километрах от МКАД по Куркинскому шоссе. Настоящий природный оазис с густым лесным массивом, извилистой речкой Сходней и множеством домов, утопающих в зелени.
Изумительная природа, чистый воздух, а также холмистый рельеф местности - отличительные черты Новогорска. Недаром это место называют подмосковной Швейцарией. Территория микрорайона Новогорск занимает 700 гектаров.
Основная часть всех построек - это частный сектор и здания малоэтажной застройки. Излюбленным местом отдыха для жителей Новогорска и москвичей является природный парк "Долина реки Сходни" в Куркино - особо охраняемая природная территория регионального значения, Захарьинская пойма прекрасное место, где можно увидеть занесенных в Красную книгу Москвы длиннохвостую синицу, ястреба-тетеревятника, белоспинного дятла, обыкновенного жулана и многих других птиц. В зимний период можно встретить зайца-русака. Вся инфраструктура г.
Химки и района Москвы Куркино в ближайшей доступности: магазины, школы (Академическая гимназия, Международная школа Riverside School, частная начальная школа "Муми -Тролль", начальная школа 1387, общеобразовательная школа
1298), детские сады ("Sun School " в Куркино, частный детский сад "Тридевятое Царство"
"В гостях у кота и Барбоса")