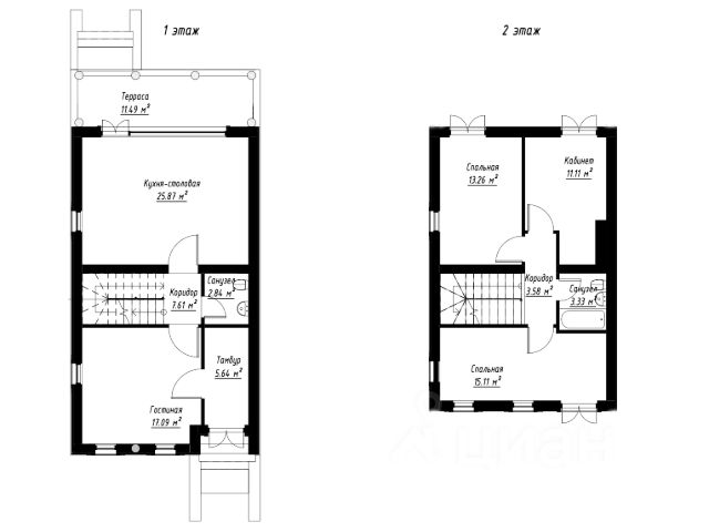
Дом в Химках в 13 км от Москвы, который строили не под перепродажу. Без экономии на инженерии и материалах. Каждая деталь дома - самого высочайшего класса! Виды разрешенного использования: Для дачного строительства Категории земель: Земли населенных пунктов Полностью готов к проживанию: всё новое, техника не использовалась, можно заехать сразу. Планировка: - кухня-гостиная - мастер-спальня с собственным санузлом - кабинет - 2 комнаты под индивидуальные задачи (детские / гостевые) - 2 отдельных санузла Что важно: - участок в лесу, ощущение полной приватности - рядом нет плотной застройки и не появится - собственный колодец — стабильная вода без перебоев - мощная система отопления с большим запасом - современная отделка (элементы микроцемента, встроенные дизайнерские решения) - продуманное хранение по всему дому Участок: - зона отдыха с барбекю - декоративная водная линия - хозяйственный блок - пространство уже сформировано, но оставлена возможность доработки под себя Дом подойдёт тем, кто ищет: - абсолютно новый, и не уставший объект премиум-класса - тишину и уединение - возможность адаптировать пространство под свои задачи Сходня - один из самых зеленых и спокойных районов Химок, с развитой инфраструктурой и и хорошей транспортной доступностью. Вся инфраструктура рядом продуктовые магазины (Пятёрочка, ВкусВилл, Дикси), большой выбор как частных, так и муниципальных детских садов и школ, рядом фитнес-клуб с бассейном, горнолыжный комплекс, поликлиника. Отличная транспортная доступность: в 15 минутах МЦД-3 Сходня! Автобусная остановка до МЦД-Химки. Без пробок на машине можно добраться за 15-20 минут до Москвы по Новосходненскому шоссе. Прекрасное спокойное место, рядом река Сходня и лес.









































































