


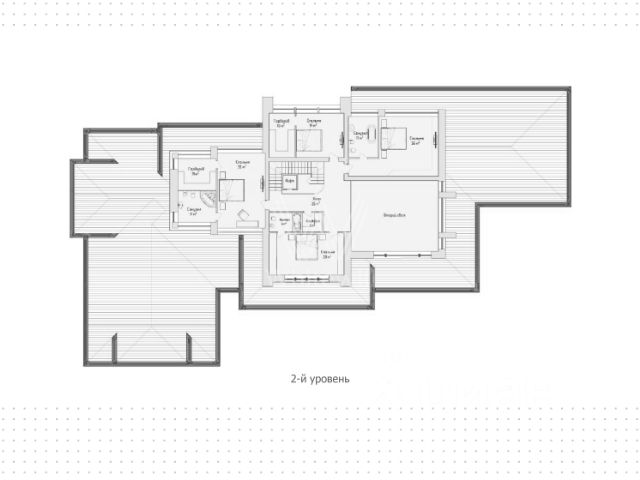
Доброго времени суток, всех заинтересовавшихся нашим эксклюзивным предложением. Вашему вниманию предлагается коттедж в закрытом клубном поселке "Новое Аристово", Дом площадью 714 кв.м., с дизайнерским ремонтом и мебелью, расположен на участке 27 соток с прекрасным ландшафтным дизайном. На территории в едином ансамбле расположен гостевой дом площадью 202 кв.м., гараж на 3 автомобиля. Теперь о доме: Фундамент монолитный железобетон, утеплённый экструдированным пенополистиролом. Стены из кирпича Porotherm, затем утеплитель из минералваты и облицовочный бельгийский кирпич. Кровля из дорогой немецкой глиняной черепицы. Двери по индивидуальному проекту нестандартные, сделаны на заказ. Начинка: Вся мебель американской фирмы ORLEANS. Кухня по индивидуальному проекту. Бильярдная, кинотеатр, гардеробные и постирочная выполнены на заказ той же компанией, что изготавливала двери. Бильярдный стол профессиональный, уровня чемпионатов мира. Сантехника итальянская. Везде натуральный мрамор и каменная мозаика. Раздельный звук HDL HomePlay для зала, бильярдной и бассейна. Инженерные системы: Водоснабжение осуществляется от артезианской скважины, расположенной натерритории участка. Имеется резервная трасса для бесперебойного водоснабжения от другой скважины. В доме установлена система водоподготовки, очищающая воду до норм Санпин РФ. Водоотведение сточных вод осуществляется через систему самотечной канализации в станцию глубокой биологической очистки аэробного типа с дальнейшим сбросом в поселковую канализационную сеть. Отопление осуществляется посредством газовой котельной. Два газовых котла настенного исполнения Вайлант (Германия) мощностью по 63,7кВт. Нагревают теплоноситель для нужд отопления и горячего водоснабжения (имеется 2 водонагревательных бака косвенного нагрева воды производства Вайлант. Электроснабжение осуществляется от поселковой абонентской подстанции, отпущенная мощность составляет 30 кВт при трехфазном подключении. Имеется резервный генератор (бензиновый) мощностью 5кВт. Интернет, телевидение, охранные системы: оптическое волокно, интернет по Wi-Fi раздается со скоростью 260мБ. Имеется IP-телевидение, эфирное телевидение, мультирум, домашний кинотеатр. Видеонаблюдение (регистратор, камеры периметр), охранная сигнализация Satel, пожарная сигнализация Fibaro. Участок : 27 соток. Ровный с ландшафтным дизайном , прудом , беседкой и декоративным мостиком , расположен в верхней точке поселка так, что даже с первого этажа у вас открываются панорамные виды на горизонт. На участке высажены хвойные и лиственные декоративные деревья и кустарники.






















































































