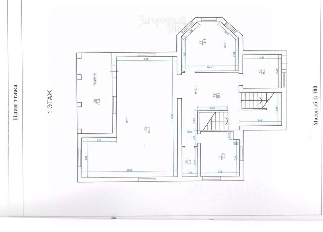
Продается просторный дом в живописной деревне Шемякино — идеально подходит для тех, кто ценит тишину, свежий воздух и жизнь вдали от городской суеты. Участок в 5 соток расположен в уютном и зеленом уголке деревни, в окружении природы и доброжелательных соседей. Общая площадь дома — 338,5 кв. м, три этажа с возможностью обустройства полноценной мансарды. Дом построен из качественных материалов: сочетание кирпича и бруса (20 см) обеспечивает надежность, тепло и приятный микроклимат. На втором этаже в двух комнатах выполнена шумоизоляция материалом Soprema. Планировка удобна для жизни. На первом этаже располагаются входная зона с прихожей, спальня, санузел и просторная кухня-гостиная, где предусмотрен вывод трубы под камин. Второй этаж включает три спальни и санузел. На третьем этаже находятся две спальни, холл и ещё один санузел — отличное решение для большой семьи или гостей. На первом этаже установлен тёплый пол для комфортного проживания. Во дворе частично выложена мраморная плитка, создающая эстетичный вид участка . На участке имеется гараж на два автомобиля (построен из пеноблока), площадью 60 кв. м. Дом находится в состоянии незавершенного строительства и требует выполнения дополнительных отделочных и ремонтных работ. Однако для дальнейшего обустройства уже имеются все необходимые материалы: плитка, потолочные панели, аквапанели, светильники, линолеум, шумоизоляционные материалы, краски, а также доска. Это позволит значительно сократить время и затраты на завершение дома по вашему вкусу и потребностям. Коммуникации: газ проведен до границы участка, электричество мощностью 15 кВт. Для водоснабжения имеется колодец. Канализация организована с помощью выгребной бочки объемом 5 кубометров. К объявлению прилагаются технические планы всех этажей. Дом готов к продаже, один собственник, быстрый выход на сделку.















































































