


279 750 ₽/м²
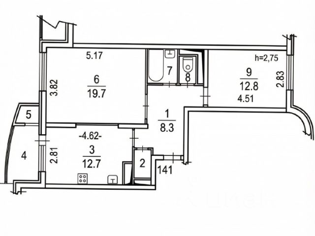
Прямая продажа от застройщика! Жилой Комплекс класса Комфорт. Продаётся 2-к квартира номер 222 общей площадью 46 кв.м. на 17-м этаже 17 этажного здания. Отделка Whitebox. Цена с учётом скидки. Особенности квартиры: - Угловая планировка - больше пространства для ваших идей. - Окно в ванной - натуральное освещение для уюта и комфорта. - Увеличенное количество окон - дополнительное освещение и свежий воздух. - Раздельный санузел - больше удобства для всех членов семьи. - Евроформат - просторное и удобное жилье с отличной планировкой. - Увеличенная высота потолков - ощущение простора и легкости. - Линейная кухня - функциональность и практичность в одном решении. - Гардеробная - удобство для хранения и организации вещей. - Ниша под шкаф - компактное и удобное место для вещей. - Лоджия - уютное место для отдыха и тишины. Квартира с предчистовой отделкой (White box). Вам не придется заниматься черновыми и трудоёмкими работы, а чистовую отделку и дизайн - сделайте на свой вкус. Информация о комплексе: Квартал класса комфорт плюс, где современное городское пространство граничит с удивительной природой вокруг. 1-й Химкинский расположен на территории в 102 га и органично вписан в природное окружение Химкинского леса и канала им. Москвы. В проекте предусмотрена богатая коммерческая инфраструктура с собственным торговым центром, общеобразовательные учреждения и социальные объекты. Изюминкой жилого комплекса будут спортивно-оздоровительный комплекс с термами и SPA и семейный парк развлечений. Транспортная доступность: ЖК "1-й Химкинский" дает возможность выбрать любой способ передвижения как до города, так и до самых разных объектов, которые могут представлять интерес для его жителей. Не важно, какой способ передвижения вы предпочитаете, успевать всегда и везде можно вне зависимости от выбора транспорта. - 8 мин. пешком (800 м) до остановки "Золотая Арка" -10 мин пешком (1 км) до остановки "Поворот на Ивакино" Внутренняя инфраструктура: - Безопасность: закрытые дворы без машин, безбарьерная среда и сквозные подъезды, камеры на детских площадках с возможностью трансляции на смартфоне - Идеальный отдых в кругу семьи: семейный парк развлечений на территории, торговый центр (2-х этажный) общей площадью более 8 тыс. кв. м с фудкортом - Образование: 3 детских сада и современная муниципальная школа на 2450 мест - Спортивная среда: закольцованный веломаршрут с навигацией, спортивный комплекс с термами, закрытый тренажерный зал и зоны ворк-аута - Социальные объекты: поликлиника со станцией скорой помощи, пожарное депо - Подземный паркинг и кладовые помещения на -1 этаже, станция техобслуживания и автомойка на территории





















































































