


248 034 ₽/м²
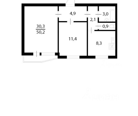
Продается 2 комн. квартира на 13 этаже из 14, секция 9, в Планерный Квартал площадью 56.07 кв.м. ЖК Планерный Квартал - это сочетание развитой инфраструктуры, современных технологий, отличной экологии и транспортной доступности. Комплекс расположен в 700м от МКАД на границе с Алёшкинским лесопарком в районе Новые Химки. Прямой выезд на МКАД и стремительное Ленинградское шоссе за 20 минут примчат вас к центру Москвы. Детские сады, школы и медицинские учреждения находится в шаговой доступности. Закрытая территория, двор без машин, круглосуточная охрана и видеонаблюдением обеспечат безопасность для жителей, а бесключевой доступ, высокоскоростной wi-fi и консьерж-служба удобство и комфорт. Двухэтажный подземный паркинг с возможностью зарядки электромобилей позволит забыть о проблеме парковок во дворе, а наличие кладовых помещений избавит от проблем с хранением габаритных и сезонных вещей. На территории расположен собственный спорткомплекс с детским и спортивным бассейном, детские и спортивные площадки с зонами для разных возрастов, а также общественное пространство для проведения праздников и массовых мероприятий. Подъезды спроектированы известным архбюро в современном стиле, оборудованы современным инженерным оборудованием, колясочными, местами для зарядки электросамокатов и высокоскоростными лифтами. Большое разнообразие планировок от 26 до 88м2 и корпуса разной этажности, от 6 до 17 позволит выбрать именно свою квартиру! 2-комнатная квартира в ипотеку в микрорайоне Новые Химки в городе Химки.
















































































































