От года, комм. платежи включены (без счётчиков), комиссия 30%, залог 550 000 ₽
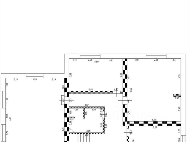
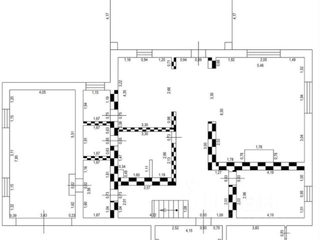
Закрытый поселок таунхаусов бизнес-класса Новогорск Олимпийская деревня. Сдается в долгосрочную аренду просторный двухэтажный таунхаус 210 кв.м. с прилегающим земельным участком 2,5 сотки. Таунхаус оборудован навесом для парковки автомобилей перед входом, а также зарядкой для электромобиля, очень просторным подсобным помещением для хранения, а также местом для хранения велосипедов, шин и прочего. В таунхаусе есть вся необходимая для проживания мебель, техника и предметы интерьера, три полноценные спальни, кабинет, три санузла, несколько гардеробных и много других мест хранения. Во дворе терраса, газон - шикарнейшее место для отдыха и общения с друзьями. Шикарная огороженная территория поселка бизнес класса Олимпийская деревня с прогулочными зонами, детской площадкой и обширной внутренней и внешней инфраструктурой. Есть абсолютно все, что необходимо для комфортного и приятного проживания Вашей семьи: фитнес-клуб Репаблика с бассейном, кафе, несколько ресторанов, продуктовые магазины: Вкусвилл и Магнит, аптека, салон красоты, Тай спа, спортивная гимназия и академия с отличными отзывами по обучению детей. Въезд на территорию поселка строго по пропускам. Напротив въезда в поселок автобусная остановка. До Мега Химки, района Куркино с его обширной инфраструктурной, выезда на Ленинградское шоссе 5 мин на автомобиле, до выезда на МКАД 10 мин на автомобиле. Шикарнейшая экология Новогорска ждет Вас, приезжайте. Показы осуществляются заранее, по предварительной договоренности. Проживание с животными обсуждается. В таунхаусе несколько просторных гардеробных, где Вы точно сможете комфортно разместить все вещи. Сдам таунхаус на длительный срок в микрорайоне Новогорск в городе Химки.
































































