Мы используем куки-файлы. Соглашение об использовании
Только на Циан
Общая площадь156 м²
Участок5 сот.
Материал домаКаркасный
Этажей в доме2
Год постройки2021
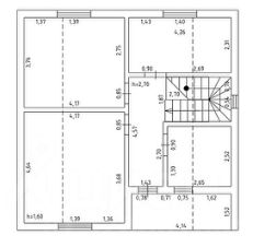
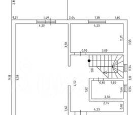
Собственник. Дом в 15 мин. от г. Зеленоград на участке 5 соток. Дом: - общая площадь 153 кв.м - прочный ленточный фундамент - 2 этажа - построен по каркасной технологии - дом теплый, комфортный, светлый - огорожен забором, распашные ворота ( но выведен кабель под электрические), две калитки. 1 этаж: Пол: плитка, стены: обои под подкраску, потолки: натяжные белые матовые. Отопление: электрический теплый пол. Двери: в с/у. - прихожая ( мебель: обувница-комод; техника: стиральная машинка, котёл, 2 бойлера, счётчик) -большая светлая гостиная совмещённая с кухней (мебель: кухня, диван, кресло, тумба под телевизор; техника: духовой шкаф, микроволновая печь, посудомоечная машинка, чайник, телевизор) - гостевая комната ( мебель: комод, кровать двухспальная, книжный стеллаж) -с/у (душевой поддон выложен плитки, стеклянное ограждение, инсталляция, раковина, полотенцесушитель). -веранда (есть столик, два стула, стеллажи для цветов, глиняные горшочки). 2 этаж: Пол: ламинат, стены: обои, потолки: нет. Отопление: радиаторы. Двери: в большой спальне. - хозяйская спальня ( мебель: кровать, столик; техника: телевизор). Эта комната самая большая на 2 этаже. - 1 детская (большая): мебель: шкаф, стол для компьютера, стул. Светлая. - 2 детская ( меньше), так же светлая. -с/у с окном. Не готов. Но выведено всё под установку ванны, раковины, полотенцесушителя, инсталляции. -балкон (выход из коридора). Лестница деревянная. Своя скважина и септик. Вся мебель на фото остаётся в доме,заберём только свои личные вещи и элементы декора. В 12 минутах пешком есть небольшой продуктовый магазин+ там скоро откроют пункт OZON. Доставка WB,OZON,Яндекс,Перекрёсток/Вкусвилл,Пятерочка приезжают. Рядом лес,пруд с утками. Дом в ипотеку у Сбербанка. Через домклик одобрен в ипотеку для новых владельцев. Переуступка нашей ипотеки невозможна. Всё в доме сделано с душой и для себя. У дома есть адрес,все документы на руках. В доме никто не прописан. 1 собственник. Детей нет. Причина продажи-переезд. По оплате за электричество: летом 1500-3000₽,зима 10-12000₽. +на участке есть бытовка, небольшая постройка для садоводов.
Позвоните автору
Вам ответят на все вопросы

О доме

Площадь

156 м²

Материал дома

Каркасный

Состояние дома

Можно жить

Количество этажей

2

Количество спален

5

Год постройки

2021

Об участке

Площадь

5 сот.

Статус участка

Индивидуальное жилищное строительство

Коммуникации и удобства

Санузел

2 в доме

Канализация

Септик

Водоснабжение

Скважина

Отопление

Электрическое

Электричество

Есть

Газ

Нет

Дополнительно

Терраса

Спросите умного помощника
Получите экспертное мнение о жилье

Расположение

Подпишитесь на объявления в этой локации
Мы сообщим, как только поблизости появится что‑нибудь новенькое
Ипотечный калькулятор
  • Базовая
  • Семейная
  • ИТ-ипотека
  • 20%
  • 30%
  • 40%
  • 50%
лет
  • 10 лет
  • 20 лет
  • 30 лет
Загружаем предложения от застройщика и банков
СобственникID 79466927
  • Предоставил паспорт
Хотите продать недвижимость?Разместите объявление на ЦианРазместить
13 800 000 ₽
Эксперт от ЦианаПомощь с поиском и сделкой
Цена за метр
88 462 ₽/м²
Ипотека
возможна
СобственникID 79466927
  • Предоставил паспорт