Мы используем куки-файлы. Соглашение об использовании
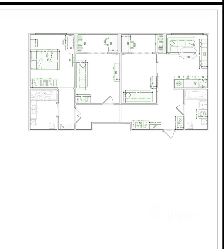
Общая площадь70 м²
Жилая площадь30 м²
Площадь кухни20 м²
Этаж10 из 10
Год сдачи2026
ДомНе сдан
ОтделкаБез отделки
Большая квартира с изолированными комнатами, (две однокомнатные для объединения в трешку) у застройщика таких планировок нет. квартира с мастер-спальней в корпусе 1.3, рядом школа и детский сад, вид на зеленую зону. первая очередь (сдача объекта 3-4 квартал 2026). в жк комфорт-класса. Квартира сдается с отделкой WhiteBox. 1-й Химкинский — мини-город с собственной инфраструктурой в окружении Химкинского леса на берегу канала им. Москвы. На территории предполагаются 2 школы, 4 детских сада, поликлиника и ТЦ. Спортивный комплекс с термами и SPA, собственный парк развлечений Более 26 видов спорта, пляжный отдых и лесные прогулки.
Позвоните автору
Вам ответят на все вопросы

О квартире

Тип жилья

Новостройка

Общая площадь

70 м²

Жилая площадь

30 м²

Площадь кухни

20 м²

Высота потолков

2,7 м

Санузел

2 раздельных

Балкон/лоджия

2 лоджии

Вид из окон

На улицу

О доме

Количество лифтов

1 пассажирский, 1 грузовой

Придомовая территория

Шлагбаум, двор без машин

Парковка

Подземная

Юридические особенности

Несовершеннолетние собственники

Нет

Материнский капитал при покупке

Не использовался

Расположение

Ипотечный калькулятор
  • Базовая
  • Семейная
  • ИТ-ипотека
  • 20%
  • 30%
  • 40%
  • 50%
лет
  • 10 лет
  • 20 лет
  • 30 лет
Загружаем предложения от застройщика и банков
Помощь риелтора
Проверенный риелтор поможет купить или продать квартиру
СобственникID 15814383
  • Предоставил паспорт
16 200 000 ₽
Цена за метр
231 429 ₽/м²
Условия сделки
переуступка
Ипотека
возможна
СобственникID 15814383
  • Предоставил паспорт