Мы используем куки-файлы. Соглашение об использовании
С мебелью
Общая площадь111 м²
Жилая площадь79 м²
Площадь кухни20 м²
Этаж2 из 8
Год постройки2015
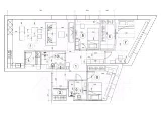
Арт. 127364475 Вашему вниманию предлагается просторная четырехкомнатная квартира в ЖК бизнес-класса "Олимпийская деревня Новогорск. Квартиры" в природоохранной зоне на берегу реки с прекрасным видом из окон, расположенная всего в 4 км от МКАД по Новокуркинскому шоссе. В квартире выполнена высококачественная дизайнерская отделка под ключ, сантехника премиальных брендов, встроенная мебель и бытовая техника. Несколько сценариев освещения. Кухонный гарнитур под единой столешницей и со встроенной бытовой техникой, встроенный холодильник. Установлен подогрев пола, кондиционер. В квартире панорамные окна в пол с видом на набережную реки Сходня и лес. Благодаря большим окнам много света и пространства. Квартира единственная на лестничной площадке, с отдельным при квартирным холлом за дверью, благодаря чему, в просторном холле можно хранить личные вещи. коляски и велосипеды. Также на этаже есть просторная кладовая для хранения вещей, используемая двумя собственниками (вторые - квартира из противоположного крыла). Монолитный дом авторской европейской архитектуры, 8 этажей, 2014 г. постройки. Фасад дома отделан керамогранитом, клинкерной плиткой и витражными конструкциями. Дом оснащен скоростным грузо-пассажирским лифтом KONE. Закрытая территория с круглосуточной охраной, въезд по пропускам, подземный паркинг. Вход в подъезд и проход к лифту и подземному паркингу без ступенек! Подъезд выполнен с использованием высококачественных отделочных материалов. В холле размещены консьерж и колясочные, предусмотрена зона ожидания с диванами и журнальным столом, есть стол для тенниса. На каждом этаже есть кладовая для хранения личных вещей (общая с соседями на этаж). Планировка квартиры: входной холл, гардеробная, совмещенный санузел, просторная кухня-столовая-гостиная, кладовая хозяйственная комната из кухни, совмещенный санузел, детская спальня, мастер спальня с собственной гардеробной и панорамными окнами, гостевая спальня с панорамными окнами. Жилой комплекс бизнес-класса "Олимпийская деревня Новогорск. Квартиры" - это еще одна часть большого жилого комплекса "Олимпийская деревня Новогорск", расположенного в городе Химки, всего в 4 км от Москвы по Новокуркинскому или Ленинградскому шоссе. Этот жилой комплекс представляется удивительным, с уникальной инфраструктурой и обширными возможностями для активного образа жизни. Месторасположение на берегу реки в природном парке добавляет ему особого очарования и предоставляет обитателям возможность наслаждаться окружающей природой. В комплексе построена вся внутренняя инфраструктура, выполнено концептуальное зонирование открытых площадок и зон отдыха, удобное для жителей разных интересов и возрастов: разнообразные детские и спортивные площадки, благоустроенная двухуровневая набережная общей длиной около двух километров, беговые и прогулочные дорожки, отрытый бассейн, собственный выход на гольф-поле. На территории комплекса выполнено ландшафтное озеленение. Создана безбарьерная среда: пандусы, съезды, увеличенные дверные
Позвоните автору
Вам ответят на все вопросы

О квартире

Тип жилья

Вторичка

Общая площадь

111 м²

Жилая площадь

79 м²

Площадь кухни

20 м²

Высота потолков

3,1 м

Санузел

2 совмещенных

Вид из окон

Во двор

Ремонт

Дизайнерский

Продаётся с мебелью

Да

О доме

Год постройки

2014

Строительная серия

Индивидуальный проект

Количество лифтов

1 грузовой

Тип дома

Монолитный

Тип перекрытий

Железобетонные

Подъезды

1

Парковка

Подземная

Отопление

Автономная котельная

Аварийность

Нет

Спросите умного помощника
Получите экспертное мнение о жилье

Расположение

Ипотечный калькулятор
  • Базовая
  • Семейная
  • ИТ-ипотека
  • 20%
  • 30%
  • 40%
  • 50%
лет
  • 10 лет
  • 20 лет
  • 30 лет
Загружаем предложения от застройщика и банков
46 000 000 ₽
Эксперт от ЦианаПомощь с поиском и гарантия безопасной сделки
Цена за метр
414 414 ₽/м²
Условия сделки
свободная продажа
Ипотека
возможна
Агентство недвижимости
На Циан
11 лет
Объектов в работе
670
Риелтор
Суперагент