Мы используем куки-файлы. Соглашение об использовании
Помещение свободного назначения, 300 м²
Площадь300 м²
Этаж7 из 7
ПомещениеСвободно
Отчёт о привлекательности объектаУзнайте, насколько помещение и район подходят для вашего бизнеса
Что входит в отчёт
  • Охват населения
  • Пешеходный трафик
  • Автомобильный трафик
  • Средний бюджет семьи по району
  • Арендные ставки рядом
  • Точки притяжения
  • Конкуренты в радиусе 1 км
  • Рекомендации по выбору места для бизнеса
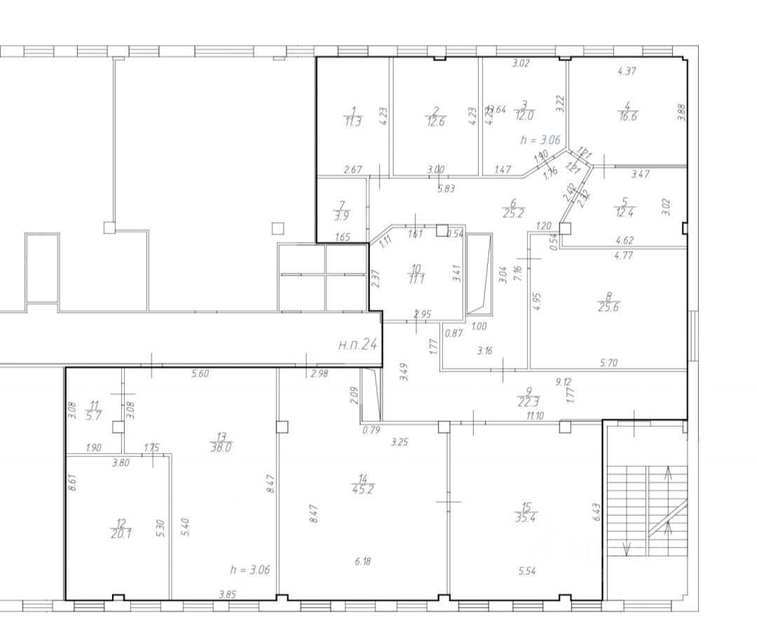
ГАБ. Помещения на 7 этаже Бизнес Центра Юбилейный. Кабинетная планировка. Офисная отделка. В собственности половина 7 этажа: коридор, 11 кабинетов и кухня. Интернет - оптиковолокно, несколько провайдеров на выбор. Электричество - прямой договор с Мосэнергосбытом. Здание 2010 года постройки, имеет 7 этажей, 2 лифта (грузовой и пассажирский), две лестницы. В здании есть отделение банка, медицинский центр, салон красоты, кафе, банкомат, центральная рецепция. Наземная парковка при здании. Очень удобный выезд на Ленинградское шоссе. До Ж/Д станции Химки, метро Планерная, Беломорская, Ховрино и Речной вокзал 15-20 мин езды. Автобусная останова в минуте ходьбы. Без обременений, свободная продажа, все документы в порядке.
lock

Войдите или зарегистрируйтесь
для просмотра информации

Просматривайте условия сделки и всю информацию об объекте
Сохраняйте фильтры в поиске и не вводите заново
Доступ к избранному с любого устройства
Неограниченное добавление в избранное
Позвоните автору
Вам ответят на все вопросы
Остались вопросы по объявлению?
Позвоните владельцу объявления и уточните необходимую информацию.
  • Инфраструктура
  • Похожие рядом
Помощь надёжных риелторов
Риелтор партнёр Циан поможет купить или продать любую недвижимость
  • 5,0・2
  • 13 лет 6 месяцев на Циане
  • 3 объявления
  • 55 000 000 ₽
    737 368 $
    626 668
    Цена за метр
    183 334 ₽
    Налог
    УСН