Мы используем куки-файлы. Соглашение об использовании
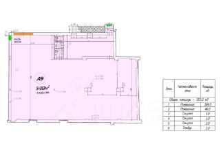
Помещение свободного назначения, 363 м²

Сдается помещение свободного назначения, 363 м²

Площадь363 м²
Этаж1 из 1
Отчёт о привлекательности объектаУзнайте, насколько помещение и район подходят для вашего бизнеса
Что входит в отчёт
  • Охват населения
  • Пешеходный трафик
  • Автомобильный трафик
  • Средний бюджет семьи по району
  • Арендные ставки рядом
  • Точки притяжения
  • Конкуренты в радиусе 1 км
  • Рекомендации по выбору места для бизнеса
Аренда от собственника! Есть возможность получения юридического адреса. Своя техника для уборки и вывоза снега. Эксплуатационные расходы входят в стоимость (уборка территории от снега, отопление, бытовое водоснабжение). ХАРАКТЕРИСТИКИ ПОМЕЩЕНИЯ А9 Общая площадь 363 м2. Помещение в тёплом капитальном здании, с воротами (ширина 3,55 м, высота 3,1 м) на нулевом уровне. Высота потолка от 4 м до 5,38 м. Подойдёт под склад, любое производство (в том числе пищевое), автосервис, детейлинг и т.п. Стабильное электричество 50 кВт (возможно увеличение мощности по согласованию). Отдельные санузлы для производственного помещения и для офисной части. Предоставляем арендные каникулы после согласования ремонта. Офисное помещения 40 м2. Расположено на асфальтированной, охраняемой, полностью огороженной территории с доступом через КПП 24/7. Асфальтированный въезд на территорию непосредственно с Ленинградского шоссе. Водоснабжение, канализация и отопление центральные. Коммунальные платежи электричество по счётчику. Есть возможность арендовать земельные участки под складирование, контейнеры (по 30 м2) и прилегающую к помещению территорию. Осмотр помещений и территории в любой день с 10 до 19 часов. По всем дополнительным вопросам звоните (ежедневно до 22-00) или пишите сообщения. Возможна оплата с полным НДС (+25%).
lock

Войдите или зарегистрируйтесь
для просмотра информации

Просматривайте условия сделки и всю информацию об объекте
Сохраняйте фильтры в поиске и не вводите заново
Доступ к избранному с любого устройства
Неограниченное добавление в избранное
Позвоните автору
Вам ответят на все вопросы
Остались вопросы по объявлению?
Позвоните владельцу объявления и уточните необходимую информацию.
  • Инфраструктура
  • Похожие рядом
  • Тип зданияПроизводственно-складской комплекс
  • Площадь участка2 га
  • Общая площадь4 500 м²
  • Статус участкаВ собственности
Естественная вентиляция
Центральное отопление
Помощь надёжных риелторов
Риелтор партнёр Циан поможет купить или продать любую недвижимость
Автор объявления
ID 140091909
  • 1 месяц на Циане
  • 435 600 ₽/мес.

    Прямая аренда (от года), минимальный срок аренды 6 месяцев, доступны арендные каникулы, обеспечительный платёж 435600 ₽, предоплата за 1 месяц

    5 832 $/мес.
    4 973 /мес.
    Цена за метр
    14 400 ₽ в год
    Налог
    УСН
    Комиссия
    нет
    Коммунальные платежи
    не включены
    Эксплуатационные расходы
    включены
    Автор объявления
    ID 140091909