Мы используем куки-файлы. Соглашение об использовании
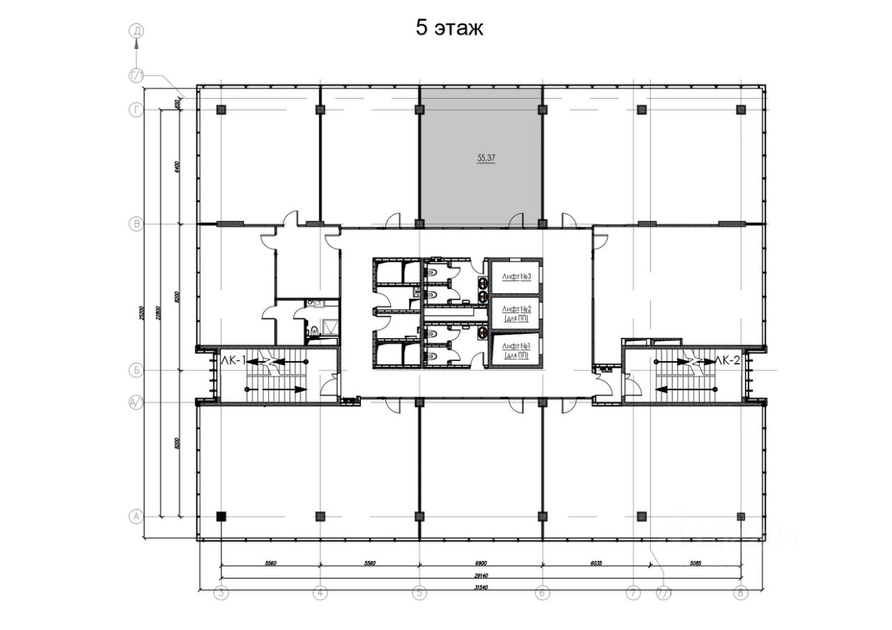
Площадь55 м²
Этаж5 из 12
Парковка152 места
ПомещениеСвободно
Отчёт о привлекательности объектаУзнайте, насколько помещение и район подходят для вашего бизнеса
Что входит в отчёт
  • Охват населения
  • Пешеходный трафик
  • Автомобильный трафик
  • Средний бюджет семьи по району
  • Арендные ставки рядом
  • Точки притяжения
  • Конкуренты в радиусе 1 км
  • Рекомендации по выбору места для бизнеса
Элегантный и современный дизайн, иновационные технологии, удобства для всех пользователей - это всё про бизнес-центр Astoriya II. Бизнес центр спроектирован с учетом современных инновационных инженерных технологий, которые включают в себя: • Систему общеобменной вентиляции немецкого производителя WOLF; • Система кондиционирования воздуха позволяет индивидуально поддерживать микроклимат индивидуально для каждого помещения; • За коммуникации отвечают оптико-волоконные технологии и предоставляется выбор провайдер для доступа в Интернет; • Бизнес-центр имеет автоматизированную систему управления, центральный мониторинг для управления инженерными системами; • Имеется собственная котельная, что позволяет поддерживает заданную температуру в здании круглогодично и не зависеть от систем городского отопления; • Бизнес-центр обладает 2 независимыми вводами электроснабжения. На случай аварийных работ имеется возможность подключения двух электрогенераторов. Бизнес-центр Astoriya II - качественные офисные помещения класса А. - Офисные помещения площадью от 50 км.м до 6 000 кв.м.; - Возможность перепланировки под арендатора; - Помещения с отделкой и без; - Панорамное остекление; - Арендные каникулы.
lock

Войдите или зарегистрируйтесь
для просмотра информации

Просматривайте условия сделки и всю информацию об объекте
Сохраняйте фильтры в поиске и не вводите заново
Доступ к избранному с любого устройства
Неограниченное добавление в избранное
Позвоните автору
Вам ответят на все вопросы
Остались вопросы по объявлению?
Позвоните владельцу объявления и уточните необходимую информацию.
  • Инфраструктура
  • Похожие рядом
Помощь надёжных риелторов
Риелтор партнёр Циан поможет купить или продать любую недвижимость
СобственникID 111084698
    84 792 ₽/мес.

    Субаренда (от года), минимальный срок аренды 11 месяцев, предоплата за 1 месяц

    1 131 $/мес.
    964 /мес.
    Цена за метр
    18 500 ₽ в год
    Налог
    НДС включен: 15 290 ₽
    Комиссия
    нет
    Коммунальные платежи
    включены
    Эксплуатационные расходы
    включены
    СобственникID 111084698