Мы используем куки-файлы. Соглашение об использовании
Помещение свободного назначения, 107,5 м²

Сдается помещение свободного назначения, 107,5 м²

Площадь107,5 м²
Этаж2 из 24
Отчёт о привлекательности объектаУзнайте, насколько помещение и район подходят для вашего бизнеса
Что входит в отчёт
  • Охват населения
  • Пешеходный трафик
  • Автомобильный трафик
  • Средний бюджет семьи по району
  • Арендные ставки рядом
  • Точки притяжения
  • Конкуренты в радиусе 1 км
  • Рекомендации по выбору места для бизнеса
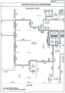
Сдаются нежилые помещения, расположенные на 2-м этаже многоэтажного жилого дома, с отдельным входом с улицы Кирова. Пять минут пешком до станции Химки (МЦД 3). Идеально подойдет под медицинский центр, стоматологию, нотариальную контору, офис, салон красоты. Общая площадь помещений 238,1м2 (площадь пом. 209 - 107,5 м2, площадь пом. 210 - 103,6 м2). В каждом помещении есть одна мокрая точка. Кондиционирование сплит-система. Система вентиляции приточно-вытяжная. Напряжение 380В, общая мощность 12,5 кВт (пом. 209 - 5,9 кВт, пом. 210 - 6,6 кВт), возможно увеличение мощности. Помещение с ремонтом. Возможно проведение капитального ремонта под ваш бизнес. Коммунальные услуги оплачиваются отдельно. Стоимость указана без НДС (УСН).
lock

Войдите или зарегистрируйтесь
для просмотра информации

Просматривайте условия сделки и всю информацию об объекте
Сохраняйте фильтры в поиске и не вводите заново
Доступ к избранному с любого устройства
Неограниченное добавление в избранное
Позвоните автору
Вам ответят на все вопросы
Остались вопросы по объявлению?
Позвоните владельцу объявления и уточните необходимую информацию.
  • Инфраструктура
  • Похожие рядом
  • Общая площадь107,5 м²
Приточная вентиляция
Местное кондиционирование
Центральное отопление
Гидрантная система пожаротушения
Помощь надёжных риелторов
Риелтор партнёр Циан поможет купить или продать любую недвижимость
СобственникID 15547981
    215 000 ₽/мес.

    Прямая аренда (от года), минимальный срок аренды 11 месяцев, доступны арендные каникулы, обеспечительный платёж 200000 ₽, предоплата за 1 месяц

    2 850 $/мес.
    2 436 /мес.
    Цена за метр
    24 000 ₽ в год
    Налог
    УСН
    Комиссия
    нет
    Коммунальные платежи
    не включены
    Эксплуатационные расходы
    не включены
    СобственникID 15547981