351 700 ₽/м²
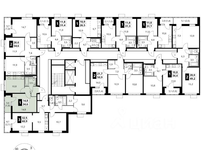
Прямая продажа от застройщика! Жилой Комплекс класса Комфорт Плюс. Продаётся 1-к квартира номер 34 общей площадью 31.4 кв.м. на 5-м этаже 16 этажного здания. Отделка Whitebox. Цена с учётом скидки. Особенности квартиры: - Просторная спальня, в которой можно разместить большую кровать. - Линейная планировка - максимальная функциональность и удобство. - Увеличенная ширина окна/окон - больше света и визуального простора. - Можно оборудовать рабочее место - комфорт для работы и учёбы. - Лоджия - уютное место для отдыха и тишины. Квартира с предчистовой отделкой (White box). Вам не придется заниматься черновыми и трудоёмкими работы, а чистовую отделку и дизайн - сделайте на свой вкус. Информация о комплексе: ЖК 1-й Шереметьевский расположен в самом центре Подрезково, от него всего 6 минут пешком до одноименной станции ж/д и планируемой к открытию МЦД-3. В комплексе яркие и уютные, лобби, большая колясочная, лапомойка. Благодаря гостевому санузлу на 1 этаже прогулки станут по-настоящему долгими. Два лифта пассажирский и грузовой.Во всех корпусах 1-го Шереметьевского там устроены кладовые, а в корпусах 3-5 есть подземный паркинг. В ЖК 1-й Шереметьевский разнообразие площадей и планировок. Большие кухни-гостиные: в них два окна или больше. Во всех квартирах площадью от 40 кв.м. и выше спроектировано 2 санузла. Большие остекленные лоджии с отделкой. Система Умная квартира, реализованная в 1-м Шереметьевском. В каждой квартире установлены датчики протечек и запорные вентили с электроприводом, которые самостоятельно перекрывают воду в случае аварии. Мобильное приложение управляет группами электропотребителей: даже если вы забыли утюг включенным, можно обесточить его дистанционно. Транспортная доступность: - Общественный транспорт: До ближайших станций метро Планерной и Войковской около 40-50 минут на автобусе. 6 минут до ЖД станции Подрезково (МЦД-3) - Личный автотранспорт: Удобный выезд на Ленинградское шоссе позволяет быстро добираться до МКАДа и в центр Москвы, до платной трассы М11 и в аэропорт Шереметьево. 3 минуты до Ленинградского ш. 10 минут до платной трассы М11 15 минут до МКАД 20 минут до ст. м Войковская 25 минут до ст. м Планерная Внутренняя инфраструктура: 1-й Шереметьевский не только сокращает время, которое вы будете проводить в дороге. Но и предпринимает многое, чтобы вы меньше ездили и чаще ходили. На первых этажах корпусов разместятся фрешмаркеты и пункты выдачи маркетплейсов, салоны красоты и химчистки, кофейни и пекарни всё, что необходимо изо дня в день, но не заслуживает отдельной поездки на машине или такси. В квартале будут построены собственные школа и детский сад. Школа рассчитана на 1100 учеников. В ней будут 25-метровый бассейн и просторный атриум, медиатека. Детский сад рассчитана на 400 малышей. Здесь стильный дизайн и комфортные группы, большой физкультурный зал и просторный зал для занятия музыкой. Дворы без машин. Безопасные детские площадки. Вдоль корпусов























































































