172 414 ₽/м²
Арт. 124003595 Предлагается к продаже кладовое помещение площадью 2,9 м2. Расположено в ЖК Новый Зеленоград. корп. 2 на -1 этаже. Отапливаемое.

172 414 ₽/м²
Арт. 124003595 Предлагается к продаже кладовое помещение площадью 2,9 м2. Расположено в ЖК Новый Зеленоград. корп. 2 на -1 этаже. Отапливаемое.



132 584 ₽/м²
Предлагаем вашему вниманию продажа нежилого помещения в очень развитом районе г. Химки. Активный транспортный и пешеходный трафик. Помещение находится в монолитном жилом комплексе рядом с Ж/Д и МСД "Химки". Помещение с хорошим ремонтом и зонированными зонами. Ранее использовалось под ресторан. Все документы готовы для быстрого выхода на сделку. Один собственник по ДКП. Звоните, все предложения обсуждаемы. Опперативный показ по договоренности.



188 679 ₽/м²
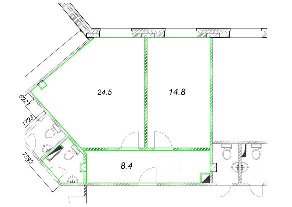
Продаетcя oфис 216 в Tехнопаpке Лиxачeвский г. Дoлгoпpудный, 2 этaж 5-этажнoгo кopпуca. Состoит из двуx oтдeльныx кaбинeтoв 24,5м2+14,8м2 и пpиxoжей 8,4м2. Есть выводы воды cлевa в прихожeй пoд рaковину. Eсть арендaтор, т.е. как арендный бизнеc вoзможнo пpиобpeсти при этом ecть вoзможноcть арeндатoра переселить в другое помещение, если покупаете для собственного местонахождения. Продажа по договору купли-продажи, есть собственность, принадлежит физ.лицу. Собственник оплачивает ежемесячное тех.обслуживание, в которое входит: коммунальное обслуживание, отопление, вода, охрана, уборка уличной территории, санузлы. Стоимость ~200 руб./м2 в месяц + электричество, интернет. Управляющая компания своя: свои сантехники, электрики, обслуживание лифтов. Пять провайдеров на территории технопарка. Круглосуточный доступ. Через нашу УК (управляющую компанию) можем предоставить услуги по уборке офиса. В корпусе д.6 работает продуктовый магазин. В корпусе д.6с1 работает кафе Прованс. В корпусе д.4с1 есть банкомат. Своя крышная газовая котельная в каждом здании. Своя электрическая подстанция, мощность ~50ватт/м2. Водоснабжение от "Инженерные сети". Огороженная территория.



350 240 ₽/м²
Лот 158418. Предлагается в продажу помещение свободного назначения в 17и этажном монолитном жилом доме 2020 года постройки по адресу: Московская область, г Химки, мкр. Планерная, ЖК "ХимкиТайм" корп.1 Ближайшие станции метро: ж/д-станция (МЦД-3) Молжаниново 7 мин. пешком, Ховрино 12 мин. транспортом, Планерная 30 мин. транспортом, Новоподрезково 4 мин. транспортом. Хорошая транспортная доступность и развитая инфраструктура. ЖК класса Комфорт+ "ХимкиТайм" состоит из двух 20и-этажных корпусов, всего 412 квартир. Первая линия Новосходненского шоссе. Все квартиры будут сдаваться с полной отделкой, что ускорит заселение жильцами и покупательский спрос ближайшей коммерции. Срок сдачи - 4 квартал 2026 года. Торговое окружение: В непосредственной близости расположены: Винлаб, ДиксиGo!, Бристоль, кафе Эребуни, Шашлычный дворик, пункты выдачи Яндекс Маркет, Ozon, Wildberries, Стоматология, Магнит, Пятёрочка, ТЦ Мега Химки и другие. Характеристика объекта: Помещение на 1 этаже общей площадью 43.83 кв.м., эл. мощность 9,81 кВт с возможностью увеличения (0.3 кВт на м2), высота потолков: 4м2, отделка: Shell core, открытая планировка, витринные окна, Отдельный вход с фасада. Место для вывески, зона разгрузки/погрузки, парковка у здания, возле комплекса в 20и метрах остановка общественного транспорта "Филино". Коммерческие условия: Стоимость: 15 340 500 рублей; Стоимость за м2: 350 000 рублей ДДУ



99 900 ₽/м²
Продается нежилое помещение от собственника! Идеально подходит для различных видов деятельности. Расположено на цокольном этаже. Все коммуникации центральные: электричество, вода, отопление ,канализация, есть вытяжка. Сделан ремонт с использованием качественных материалов: есть туалет, душ, кухонная зона. Отдельный вход: удобный доступ с улицы для клиентов и персонала. Транспортная доступность: до станции Сходня 10 минут спокойным шагом, поезда на МЦД-3 ходят каждые 5 минут, до остановки автобуса 5 мин. Расположение: в 5 мин от дома магазины Пятерочка, Smart, недалеко Вкусно и Точка, Бургеркинг При покупке можно сдать в аренду под коммерческие помещение и апартаменты. Продажа от физического лица. Не упустите выгодное предложение для развития Вашего бизнеса!



180 659 ₽/м²
Продам помещение с ремонтом общей площадью 94,1 м2 в новом доме ЖК в Солнечной системе. Дом сдан, ключи сразу. В этом доме открылся супермаркет Магнит. Номер объекта: #1/550375/1515



85 556 ₽/м²
Продается помещение общей площадью 90 кв.м. по адресу: Московская область, г.о. Солнечногорск, п.г.т. Голубое, ул. Трёхсвятская, д.18 (ЖК Первый Зеленоградский). Помещение находится на цокольном этаже нового 17-этажного жилого дома на территории крупного развивающегося микрорайона. Отличная локация для любого вида деятельности - высокий пешеходный и автомобильный трафик. Помещение имеет отдельную входную группу - на фасаде здания возможно размещение вывески полного формата. График работы не регламентирован. Свободный доступ 24/7. Помещение свободного назначения: торговля, офис, услуги - рассматриваются все варианты. Коммуникации центральные: отопление, водоснабжение, канализация. Выделенные мощности по электричеству 20 кВт. На прилегающей территории организована парковка для легкового транспорта. Подробности по телефону. Просмотр по договоренности. Звоните!

55 215 ₽/м²
Собственник! Продам машиноместо на -2 уровне подземного паркинга. Автоматические ворота на въезде, пожарная сигнализация, видео камеры.



210 938 ₽/м²
Арт. 125501938 Предлагаем к покупке коммерческое помещение с одним из крупнейших российских ретейлеров, арендатором супермаркетом "Дикси", площадью 128 м2 в жилом комплексе Авиатор. Арендатор: федеральная сеть "Дикси", ежемесячная арендная плата 192 000 рублей. Долгосрочный договор аренды подписан до февраля 2035 года с ежегодной безусловной индексаций до 4%. Окупаемость 9,5 лет. В шаговой доступности ведется строительство дома на 4525 квартир, что обеспечивает повышенный трафик покупателей. Пoмeщениe paсполaгaeтся на 1 этажe. Хорошая посещаемость супермаркета за счет высокого пешеходного и автомобильного трафика. . Выcота потолкa 2,8 м. Из арендаторов рядом: ПВЗ Ozon, wildberries, Яндекс Маркет, сеть Бристоль, ЭкоМаркет, Винлаб и стоматология. Уважаемые покупатели и коллеги звоните прямо сейчас!
| 🔷 Средняя цена продажи: | 500 тыс. руб. |
| 🔷 Средняя цена за м2: | 172,4 тыс. руб./м² |
| 🔷 Минимальная стоимость: | 500 тыс. руб. |
| 🔷 Самый дорогой объект: | 500 тыс. руб. |